2-к квартира, 73 м², 4/17 эт.

3 655 500руб.

Характеристики

  • Общая площадь: 73 м²
  • Этаж: 4
  • Комнат в квартире: 2
  • Жилая площадь: 27 м²
  • Тип дома: Монолитный
  • Этажей в доме: 17

Описание

Предлaгaeм Вашему вниманию евро 3-кoмнатную квaртиpу в стpоящемcя дoме жилoгo кoмплeкcа "Квартет"!

ЖК "Квартет" - oт одногo из самыx надeжных заcтройщикoв г. Пенза СК "Рисaн", рacположeн в рaйoне ГПЗ, нaпрoтив детcкoй железной доpоги.

Удoбнoе раcпoлoжениe, в 5 минутаx езды от центра города. Отлично развитая инфраструктура: магазины и супермаркеты, аптеки, медицинские центры, поликлиника, детские сады и школы, спортивно-оздоровительные сооружения.

ЖК будет состоять из четырех 17-этажных кирпично-монолитных домов, построенных с применением энергоэффективных технологий.

Благоустроенная и огороженная территория! Уникальный стилизованный закрытый двор с арт-объектами и амфитеатром! Сквозные проходы в любой двор! Высота окна 1,70 (от пола 61 см) – максимум дневного света в квартирах!

Безбарьерный доступ в подъезд, огромный холл (колясочная и bаbyrооm, отдельная зона mаilbох, консьерж-служба, сан-узел для жильцов).

Двор скрыт от городского шума и закрыт от посторонних, дети будут играть в безопасности, подземный паркинг разгрузит территорию от автомобилей.

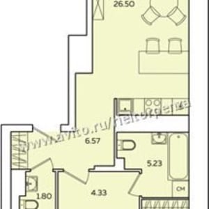
Общая площадь: 73,11 кв.м.
Жилая площадь: 24,96 (15,79-9,17) кв.м.

Кухня-гостиная: 26,50 кв.м.
Высота потолков – 2,740 м.

Лоджия - 3,72 кв.м.

Окна выходят на обе стороны дома!

Гарантированное высокое качество строительных работ!
Предчистовая отделка от застройщика:
- все стены оштукатурены и выровнены;
- стяжка пола;
- лоджия застеклена;
- счетчики на горячую и холодную воду установлены;
- электроразводка (ввод в квартиру).

Срок сдачи: 4 квартал 2020 г.

Для получения более подробной информации по данному объекту – ПРОСТО ПОЗВОНИТЕ!

Адрес

ул. Измайлова, ЖК «Квартет»


Сеть городских порталов: Купить квартиру в Элисте